







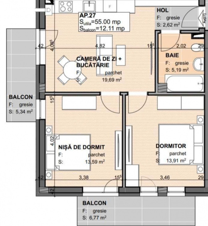
MOLONA ESTATE va prezinta un apartament cu 2 camere de vânzare, situat la etaj intermediar într-un bloc nou, ideal pentru locuit sau investiție.
🏠 Detalii apartament:
Suprafață utilă generoasă
2 dormitoare
Living cu bucătărie open-space
1 baie
2 balcoane – perfect pentru relaxare
Compartimentare modernă și eficientă
Luminos și bine izolat
Se vinde cu CF-uri – pregătit pentru tranzacție
💶 Preț: 99.400 € + TVA
(parcarea subterană disponibilă la 6.500 € suplimentar)
🅿️ Loc de parcare subteran – acces securizat
📞 Contactează-mă pentru mai multe detalii sau o vizionare!